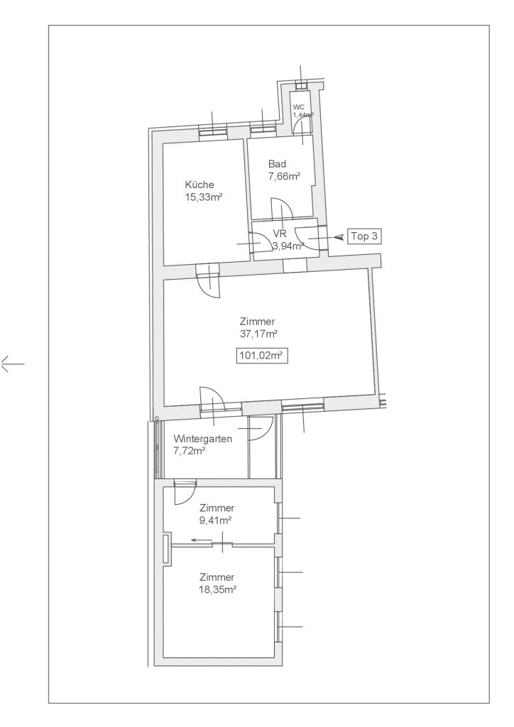
Diese sehr gepflegte Altbauwohnung liegt in der Innenstadt St. Pölten (Fußgängerzone). Sie verfügt über Wohnzimmer, 2 Schlafzimmer, Wohnküche, Vorraum, Bad und WC, Wintergarten und Balkon. Aufgrund der Innenhoflage ist sie sehr ruhig.


















Lage:
Fußgängerzone. Zu Fuß erreichbar: Nahversorger, Ärzt*innen, Schulen, Kindergärten, Bahnhof, FH, Magistrat, Landesregierung, Traisen und das Naherholungsgebiet Viehofner Seen.
Informationen:
- ca. 101 m2
- 1. Stock, kein Lift vorhanden
- verfügbar ab sofort
- Heizung: Fernwärme St. Pölten
- Waschmaschinenanschluss vorhanden
- Kurzparkzone (Innenstadtpickerl)
- Innenhoflage
Miete und Betriebskosten:
- Miete (exkl. USt) € 905,-
- Miete (inkl. 10 % USt) € 995,50,-
- Betriebskosten (exkl. USt) € 167,-
- Betriebskosten (inkl. 10 % USt) € 183,70
- Gesamtmiete (inkl. 10 % USt) € 1.179,20
Kaution: 3.000,-
Provision: keine
Ablöse: keine
Plan:

Energieausweis
HWB Energieklasse: D
HWB (kwh/m2/Jahr): 138,3
fGEE: 2,29
fGEE Energieklasse: D
Anfragen:
Über unser Kontaktformular oder telefonisch: 0660/3280202